Toggle navigation
西安霏比思设计咨询有限公司
首页
关于我们
新闻中心
公司新闻
行业新闻
业务范围
投资规划
选址规划
设计规划
CMA认证咨询
CNAS认可咨询
医疗机构职业许可证咨询
GMP认证咨询
司法鉴定许可申请/认证
技术人员知识和技能培训
仪器设备参数配置咨询
建设方案咨询
农产品检测资质CATL咨询
实验室验收
DILAC国防实验室认可
实验室生物安全许可
设计案例
科研院所
检验检疫
大专院校
医疗卫生
生物制药
企事业单位
服务承诺
联系我们
029-86711893/18591790589(服务专线,谢绝推销)
您当前的位置:
首页
>
设计案例
>
医疗卫生
>
某医疗科技有限公司某药品存放室项目
项目地点
:
项目面积
:
签约时间
:
项目成果
:设计已采用
服务内容
:项目包括实验室装修、通风系统、电气施工。
立即咨询
咨询电话:18591790589
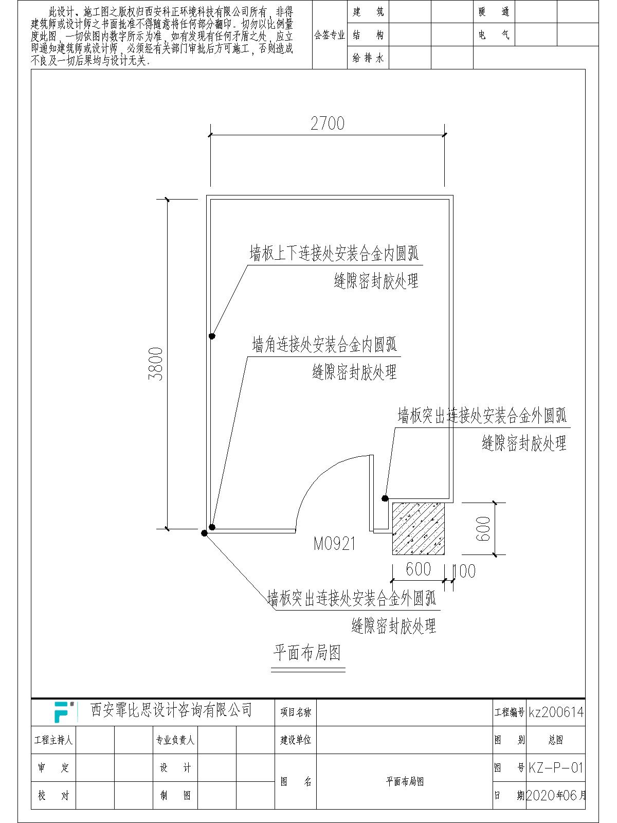
一
、工程内容
1、实验室装修改造施工:隔墙、门的采安及垃圾清运,墙板与顶板的安装、门的制作安装;
2、通风系统施工:FFU采安;
3、电气施工:净化照明灯、开关等电气设备布置安装,布线。
上一篇:
某市疾控中心PCR实验室改造项目
下一篇:
没有了
备案号:
陕ICP备13001605号-2
© 西安霏比思设计咨询有限公司 版权所有
导航栏
集团一体化平台
净化系统建设EPC总包
实验室系统建设EPC总包
实验室仪器设备化玻试剂供应商
在线咨询